en
sk
ateliér
o nás
kontakt
projekty
bývanie
verejné
interiér
urbanizmus
realizácie
VELOX
drevostavby
KRINNER
iné
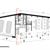
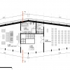
Ing. arch. Boris Bartánus, Ing. arch. Tatiana Petrulová
Liptovská Ondrašová
2015
novostavba