en
sk
ateliér
o nás
kontakt
projekty
bývanie
verejné
interiér
urbanizmus
realizácie
VELOX
drevostavby
KRINNER
iné
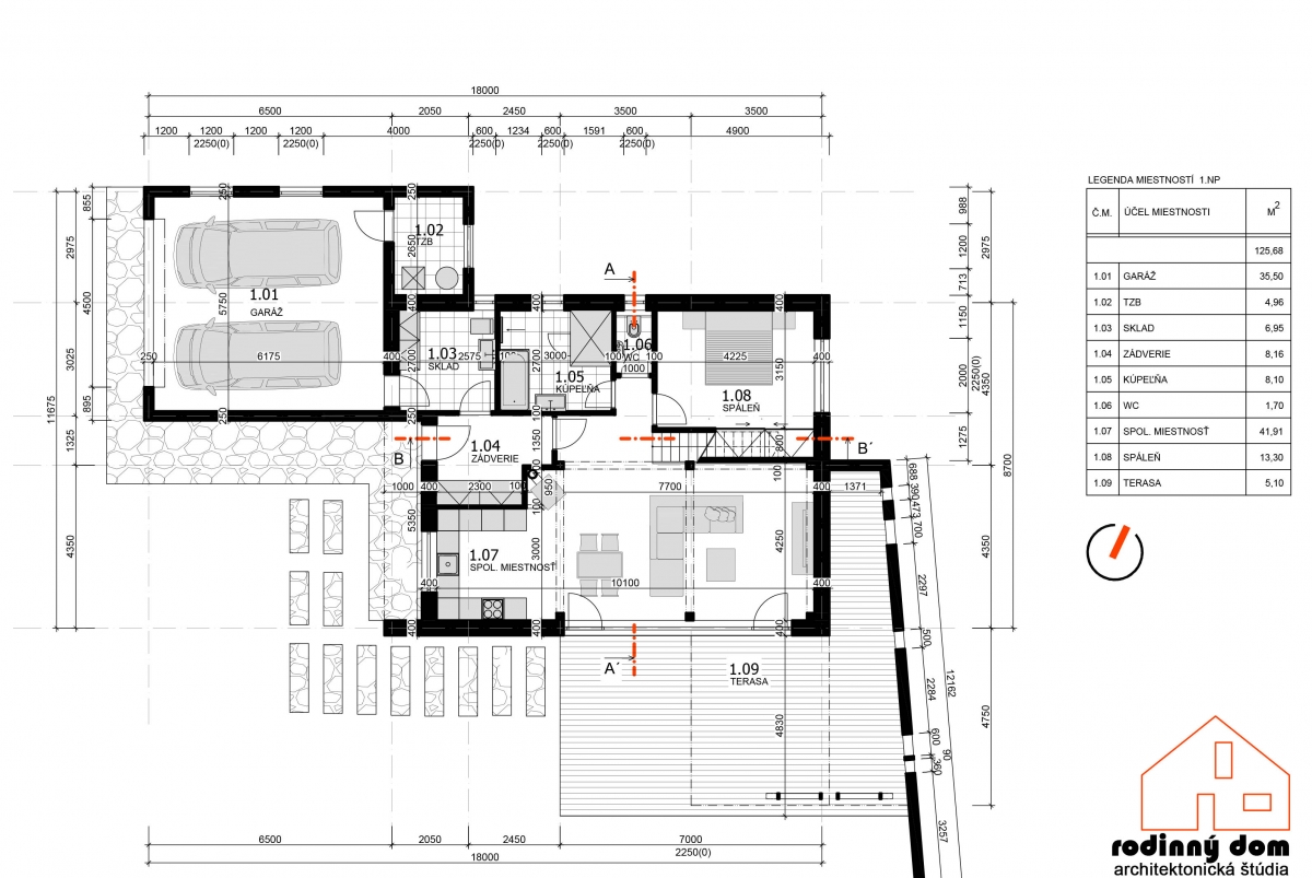
Ing. arch. Boris Bartánus, Ing. arch. Tatiana Petrulová
2016
Liptovská Teplička
novostavba